岩崎電気株式会社のプレスリリース
岩崎電気株式会社は、屋外テニスコート用照明器具「LEDioc TENNISTER(レディオック テニスター)」をリニューアルし7月1日より発売します。

新設計の「レディオック テニスター」は、JIS照度基準に準拠した上で、「小形・軽量化」を実現。
既存の設備を利用したリニューアルに対応する「マルチ取付構造」を採用しています。
競技エリア内の照度や照度均斉度、適切な空間照度を確保しつつ周囲への光漏れを抑えた配光設計により、既設の従来HID照明器具(※1)からの置換えに対応する400クラスと、JIS区分II・IIIに対応する300クラスの2機種をラインアップしました。
消費電力は従来HID照明器具(※1)(消費電力:1070W)と比較して約60%の節電に貢献します。
また、43%の軽量化により施工性を向上。
さらに重耐塩塗装を標準とし、海岸線に近いテニスコートでもご使用いただけます。
※1 HID屋外テニスコート用照明器具 H8152A(B)+一般形メタルハライドランプ1000W(クリア)
主な特長
JIS照度基準に準拠した配光性能
テニスコート面を高い照度均斉度で効率よく照明し、かつ適切な空間照度の確保やまぶしさを軽減するなど、プレイヤーの快適性に配慮した配光性能です。
テニスコートに特化した配光制御

- コート全面を高い照度均斉度で効率よく照明できる配光性能
- プレイヤーの快適性を向上するまぶしさの軽減
- 空間の明るさを確保してロビングボールの視認性も向上
- 配光制御でコート外への光漏れを抑制
小形・軽量化
従来HID照明器具(※1)と比較して受圧面積比53%の小形化(0.128m²→0.060m²)、質量比で43%の軽量化(27.4kg→15.5kg)を実現しました。

※1 HID屋外テニスコート用照明器具 H8152A(B)
マルチ取付構造で既設器具からのリニューアルに対応
マルチ取付構造の採用で、3種類の取付ピッチに対応。
角度変更機能でアーム角度に合わせた適切な取付が可能となり、既存設備を有効利用できます。
また、設置後の角度調節も可能です。

重耐塩塗装仕上げ
「重耐塩仕様」を標準仕様とし、海岸線に近いテニスコートでも安心して使用できます。
主な仕様
使用場所:屋外専用器具
商品名:LEDioc TENNISTER
光源色:昼白色(5000K)
LEDモジュール寿命:40000時間(光束維持率95%)
平均演色評価数:Ra70
| クラス | 400クラス | 300クラス |
| 形式 | ET40001/NSAJ2 | ET30001/NSAJ2 |
| 希望小売価格(税抜) | ¥633,000 | ¥482,000 |
| 定格光束(器具光束) | 57400 lm | 44500lm |
| 消費電力(最大/平均) | 420W/409W | 325W/316W |
| 固有エネルギー消費効率 | 136.6 lm/W | 136.9 lm/W |
| 受圧面積(※2)(正面/側面) | 0.106m² | 0.060m² |
※2 水平より30度時の値。
共通仕様
本体:アルミダイカスト(ポリエステル塗装)
取付台座:ステンレス(ポリエステル塗装)
反射鏡:アルミダイカスト(鏡面仕上)
前面カバー:強化ガラス t4.0(透明)
口出線:キャブタイヤケーブル(器具外1600mm)
入力電圧:200~242V対応
周波数:50/60Hz共用
耐雷サージ:15kV(コモンモード)
保護等級:IP65
使用温度範囲:-20℃~+35℃
仕上色:ダークグレイ
質量:15.5kg
※ 電源ユニット内蔵形
※ 初期照度補正機能付
※ 落下防止ワイヤ付属
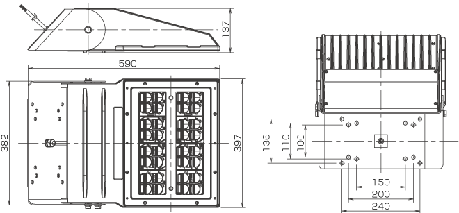
寸法図

※単位:mm
※LEDには、ばらつきがあるため同一形式においても光色、明るさが異なる場合があります。
※商品改良のため、仕様・外観を予告無しに変更することがあります。
※LEDモジュール寿命は設計寿命であり、その寿命を保証するものではありません。
※特性値はすべて周囲温度25℃時の値です。周囲温度により特性値は変わります。

